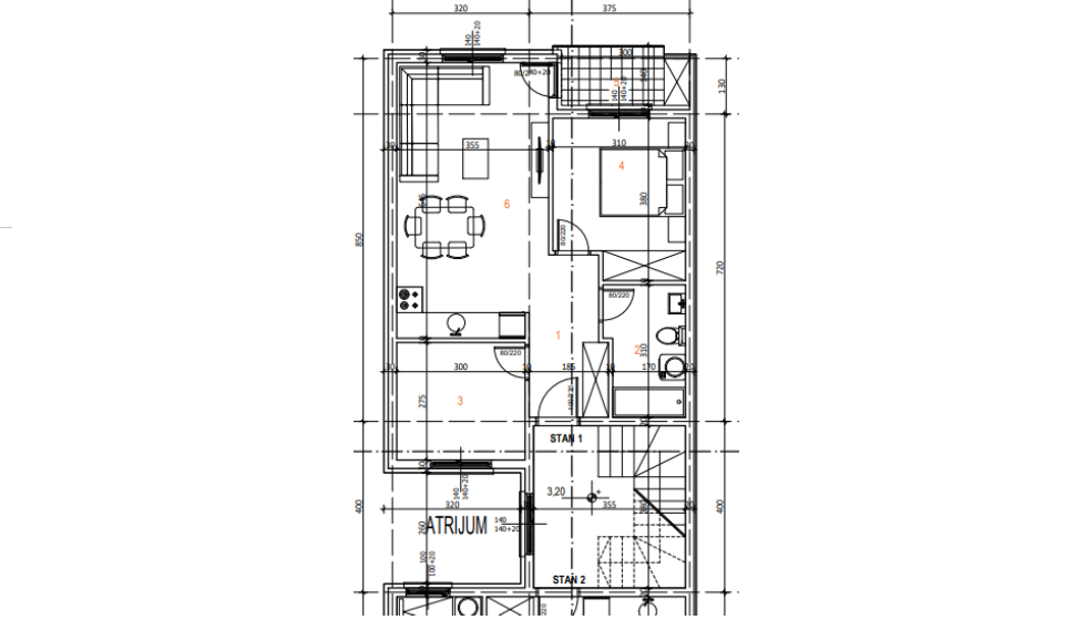
Mladena Stojanovića 14 Stan 1a
57,31m2

Karakteristike Zgrade

ART HOUSE 021 sa zadovoljstvom Vam predstavlja naš novi objekat Mladena Stojanovića 16 u Novom Sadu. U mirnoj ulici. Stanovi u izgradnji će biti opremljeni po najvišim arhitektonskim i tehnološkim standardima koji ispunjavaju zahteve modernog života u Novom Sadu.Objekat je projektovan da zadovolji „A“ energetsku klasu. Stanovi u izgradnji u Novom Sadu rade se od YTONG-a koji je ekološki materijal, od prirodnog sastava i ima odličnu zvučnu izolaciju. YTONG garantuje otpornost pri zemljotresu i zaštitu od požara i predstavlja zdravo okruženje uz mnogo manje troškove grejanja i hlađenja.

Karakteristike Stana 1a:

  • Br.Soba :2
  • Sprat :1
  • Kvadratura :57,31m2
  • Ulaz: 6.26m2
  • Kupatilo: 5.55m2
  • D.Soba i kuhinja : 22.26m2
  • S.Soba: 8.25m2
  • S.Soba: 10.65m2
  • Terasa: 4.34m2