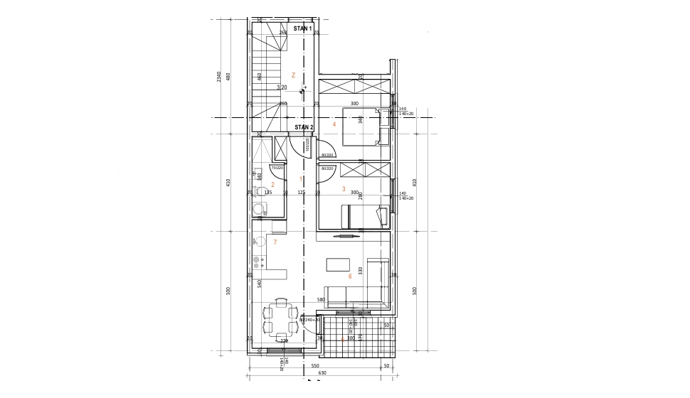
Mladena Stojanovića 14 Stan 2
57,45m2

Karakteristike Zgrade

ART HOUSE 021 sa zadovoljstvom Vam predstavlja naš novi objekatMladena Stojanovića 16 u Novom Sadu. U mirnoj ulici. Stanovi u izgradnji će biti opremljeni po najvišim arhitektonskim i tehnološkim standardima koji ispunjavaju zahteve modernog života u Novom Sadu.Objekat je projektovan da zadovolji „A“ energetsku klasu. Stanovi u izgradnji u Novom Sadu rade se od YTONG-a koji je ekološki materijal, od prirodnog sastava i ima odličnu zvučnu izolaciju. YTONG garantuje otpornost pri zemljotresu i zaštitu od požara i predstavlja zdravo okruženje uz mnogo manje troškove grejanja i hlađenja.

Karakteristike Stan 2:

  • Br.Soba :2
  • Sprat :1
  • Kvadratura :57,45m2
  • Ulaz: 5.19m2
  • Kupatilo: 4.04m2
  • D.Soba : 10.23m2
  • S.Soba: 8.40m2
  • S.Soba: 10.20m2
  • Terasa: 5.12m2
  • Kuhinja sa trepezarijom: 14.27m2